Ground Floor Flat: Benefit from direct access to a private garden.
Period Charm: High ceilings, original floors, and feature fireplaces maintain the elegant Victorian character.
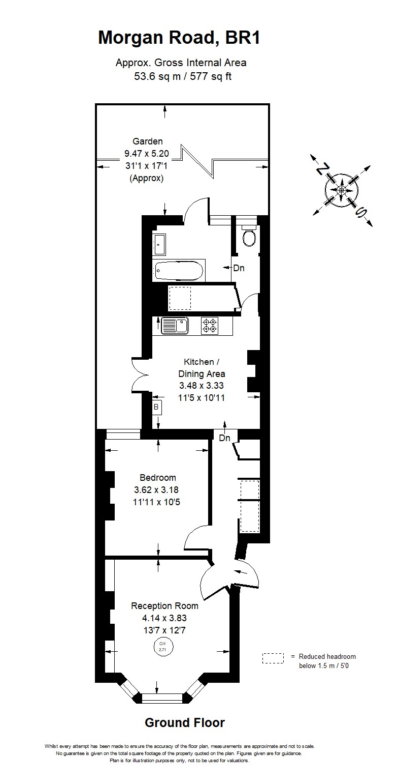
Spacious Living: Large bay-fronted lounge with a fireplace and a well-proportioned double master bedroom.
Fitted Kitchen/Diner: With plenty of space to cook, dine and entertain.
Private Rear Garden: An essential outdoor space, offering a paved patio area and potential for outdoor entertaining.
Superb Location: Quietly situated yet within an easy walk of Bromley Town Centre and Sundridge Park Village.
Excellent Transport: Under half a mile to Sundridge Park and Bromley North Stations (London Bridge, Charing Cross, Cannon Street via Grove Park).
New Lease: The buyer will benefit from a brand new (125+ year) lease on completion
An opportunity to acquire a spacious Victorian ground floor maisonette nestled on the popular residential road of Morgan Road, BR1. Combining classic period charm with practical, updated living spaces, this property offers a superb home for first-time buyers, professionals, or investors seeking excellent transport and local amenities.
This chain-free flat immediately impresses with its welcoming hallway, complete with original detailing and valuable built-in storage.
The bay-fronted lounge is a bright, characterful space, featuring a period fireplace with tiled insets and high ceilings. The original floorboards and sash windows have been wonderfully restored and emphasise the historic charm of the flat. This leads through to a well-equipped, generous kitchen/diner which boasts ample space for dining. Crucially, a double-glazed door provides direct access to the private rear garden.
The apartment includes a spacious double bedroom, plenty of well-crafted built in storage, and a bathroom with separate toilet.
With high ceilings throughout enhancing the sense of space, this home is offered for sale on a chain-free basis, and with a brand new lease on completion.
Morgan Road is renowned for its attractive period properties and convenient setting. Residents benefit from the local shops, cafés, and amenities of both Sundridge Park Village and Plaistow Lane.
The extensive retail and leisure facilities of Bromley Town Centre (including The Glades Shopping Centre) are all within easy reach by foot. Transport links are outstanding:
Sundridge Park Station (approx. 0.3 miles)
Bromley North Station (approx. 0.4 miles)
Utility Supplies
| Electricity |
Ask Agent |
| Water |
Ask Agent |
| Heating |
Ask Agent |
| Broadband |
Ask Agent |
| Sewerage |
Ask Agent |
Rights & Restrictions
| Article 4 Area |
Ask Agent |
| Listed property |
Ask Agent |
| Restrictions |
Ask Agent |
| Required access |
Ask Agent |
| Rights of Way |
Ask Agent |
Risks
| Flooded in last 5 years |
Ask Agent |
| Flood defenses |
Ask Agent |
| Flood sources |
Ask Agent |
Bedrooms:
1 Bedroom
Tenure:
Leasehold
Lease Remaining:
125 years
Broadband Speeds
|
Minimum |
Maximum |
| Download |
13.00 Mbps |
5000.00 Mbps |
| Upload |
1.00 Mbps |
5000.00 Mbps |
|
Estimated broadband speeds provided by Ofcom for this property's postcode. |
Mobile Coverage
|
Indoor |
| Provider |
Voice |
Data |
4G |
| EE |
|
|
|
| Three |
|
|
|
| O2 |
|
|
|
| Vodafone |
|
|
|
|
Estimated mobile coverage provided by Ofcom for this property's postcode. |
|
Outdoor |
| Provider |
Voice |
Data |
4G |
| EE |
|
|
|
| Three |
|
|
|
| O2 |
|
|
|
| Vodafone |
|
|
|
|
Estimated mobile coverage provided by Ofcom for this property's postcode. |